钢结构和混凝土设计软件ProStructures能高效创建精确的钢结构、金属结构和钢筋混凝土结构的三维模型,可用于创建设计图纸、制造详图和钢筋表,它们会随着您对三维模型的更改自动更新。可自定义的用户标准和开放的工作环境大大提升了项目完成速度。

ProStructures作为资深设计工程师开发的综合软件,包含ProSteel和ProConcrete两大组件,有助于提升您的工作效率和获利能力。ProStructures可用于:
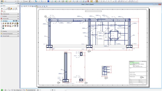
自动创建精确文档和详图。
轻松生成楼梯、扶手、云梯和圆形楼梯的详图。
自动接收来自三维模型的二维图纸,包括物料清单、NC数据和PPS数据。
通过与 Bentley 产品和第三方产品集成,避免重复工作。

软件功能
1.国际标准的设计
在您的产品设计中,使用广泛的国际标准与规格,扩展您的业务实践,利用全球的设计机会。受益于国际标准的广泛支持,充满信心的完成您的设计。

2.钢筋混凝土详细设计和制表
生成钢筋放置工程图,包括截面图、平面图、详图、钢筋弯曲表、材料统计和梁/柱/基脚钢筋表,这些全部以三维模型为基础。所有钢筋表和工程图均可进行自定义,以满足您公司混凝土项目的标准。

3.为参数结构建模
为结构构件(比如梁、柱、支架、钢结构连接、基础、地基和钢筋)建模。在梁和柱之间使用钢结构连接,自动更新尺寸变化。构件类型也可以用到参数化组件(比如楼梯、梯架和扶手)中。

4.为钢筋混凝土建模
为各种形状的钢筋混凝土建模,如混凝土梁、柱、板、墙、扩展基脚和连续基脚,全部使用参数化方式进行操作。混凝土形状如有变化,钢筋会自动调整。使用直观的命令为复杂的钢筋混凝土形状建模,包括曲线、斜面或非正交形状。

5.生成钢铁制造工程图
为三维模型中的每个型钢、钢结构结点和钢结构板件生成工程图。轻松创建综合的单部件工程图,包括尺寸、注释、标签和部件清单。定制工程图以符合公司所有结构钢项目的标准。根据三维模型的更改自动更新所有过时的工程图。

6.生成结构混凝土详图
生成钢筋放置工程图,包括三维模型中的截面图、平面图和详图。快速创建钢筋详图,包括自动钢筋标记、尺寸和注释。自定义全部工程图,确保所有钢筋混凝土项目均符合您公司的标准。根据三维模型的更改自动更新工程图。

7.生成结构施工文档
生成施工文档(如平面图、剖面图和详图),这些全部与三维模型自动关联。对三维模型所作的更改会在工程图中自动更新。使用工程图中需要重新发布的自动标记来轻松管理模型的更改和修订。

8.生成结构设计文档
自动生成结构设计文档,包括用于传递设计意图的必要平面图和立面图。对三维模型所作的更改会在文档中自动更新。

9.生成结构详图
利用在结构模型中建立的设计结果直接生成详细的二维工程图。使用软件中提供的设置自定义工程图的样式和格式。

10.共享结构模型
将结构模型几何图形和设计结果从一个应用程序传输到另一个应用程序,并同步未来变化。快速共享结构模型、工程图和信息以供整个团队查看。

11.跟踪和恢复结构设计变更
管理三维模型的设计变更,利用可选说明和时间戳跟踪版本修订。在项目期间,可以随时回退或撤销选定的变更。查看多个设计方案,并从建模错误中快速恢复。

12.充分利用国际通用标准截面配置文件
使用丰富的国际通用标准的截面配置文件库(不另外收费)完成结构模型。充分利用全球性的设计机会。

拨打电话
解决方案
产品中心
艾三维首页